Zeiterfassung bringt mehr Effizienz auf Baustellen und beim Kundendienst

Zeiterfassung (Büro)

Zeiterfassung

Mit Hilfe des Programms Zeiterfassung kann ein Betrieb den wichtigen Faktor Arbeitszeit besser planen, kalkulieren und überwachen – und damit Kosten sparen.

Zeiterfassung lohnt sich, denn mit einem effektiven und flexiblen Zeitmanagement können Sie einen überlegenen Kundenservice bieten und dadurch Wettbewerbsvorteile erzielen.

Flexible Arbeitszeiten

Es sind verschiedene Arbeitszeitmodelle mit unterschiedlichen täglichen Arbeitszeiten sowie Lohnarten definierbar. Dem Personal zugeordnet ist das jeweilige Arbeitszeitmodell und der Verrechnungssatz (mit komfortabler Ermittlungshilfe). Die Forderung nach flexiblen Arbeitszeitregelungen im Handwerk kann damit voll erfüllt werden.

In den Programmeinstellungen wird das Programm konfiguriert und an den individuellen Bedarf angepasst: Arbeitszeiten, Feiertage, Kolonnen, Lohnarten, Kostenstellen, Monteure, Auslöse…

Zeiten können personalbezogen oder auch unabhängig vom Mitarbeiter erfasst werden. Sie werden einem Projekt oder einem Regieauftrags-Vorgang zugewiesen. Außerdem wird eingegeben, welche Kostenstelle damit belastet wird. Die Zeiten können dann im Programm Regieauftrag automatisch mit verrechnet werden.

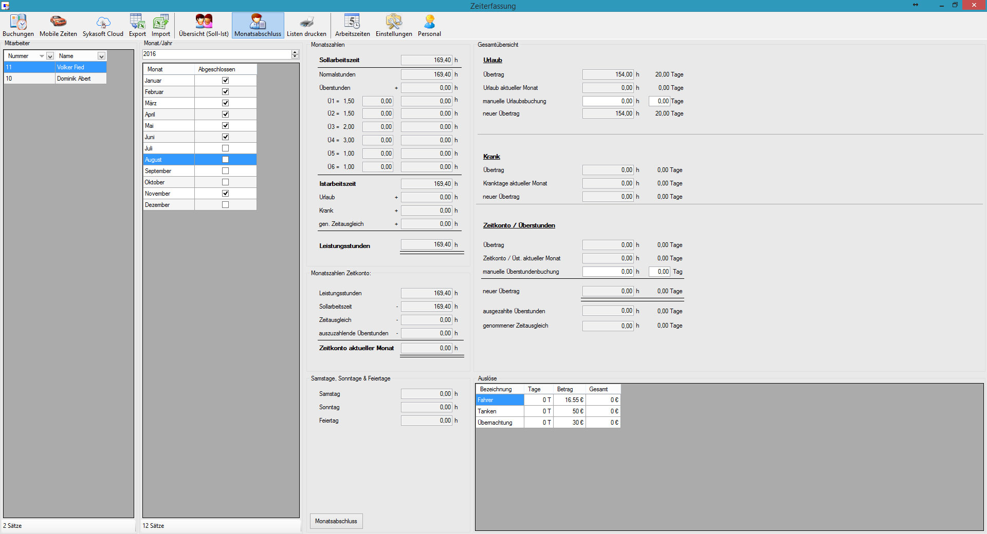
Monatsabschluss mit Stundenabrechnung

Durch das Zeitkonten-Konzept können die Stunden flexibel verteilt werden. Beim Buchen werden die Zeiten aufgelistet und addiert. Die Gesamtzahl der geleisteten Stunden wird mit dem Übertrag aus dem Vormonat verrechnet und ergibt die Zwischensumme. Diese wiederum wird mit den Sollstunden des Monats verglichen und die Differenz als Übertrag für den nächsten Monat eingetragen.

GoBD-konform

Die Zeiterfassung berücksichtigt die GoBD-Anforderungen. Ruft man einen Monatsabschluss neu auf, wird man vorher aufgefordert, einen Grund dafür anzugeben. Die Begründung, das Änderungsdatum und der Benutzer werden mit gespeichert.

Zeitkonto-Kontrolle

Wenige Eingaben in der Zeiterfassung schaffen optimale Transparenz.

Über verschiedene Statistiken und Auswertungen werden die Zeitkonten überwacht. Im Programmteil Überwachung wird die geleistete Arbeitszeit mit der Sollarbeitszeit verglichen und als Linien- oder Säulendiagramm grafisch dargestellt. Die Auswertung kann nach Monatsarbeitszeit oder Jahresarbeitszeit (wobei kumuliert wird) erfolgen.

Verschiedene aussagekräftige Listen (nach Projekten, nach Personal oder nach Kostenstellen) sorgen für Überblick.

Buchen und Schnittstellen

Doppelte Erfassung von Daten – das war gestern. Die Information fließt durch das automatische Buchen immer ein ins System, beispielsweise ins Programm Baustellenüberwachung.

Nicht nur innerhalb des sykasoft-Programms stehen alle einmal erfassten Daten stets zur Verfügung, auch an Lohn- und Gehaltsprogramme können die gebuchten Zeiten übergeben werden.

So leistet das sykasoft Programm Zeiterfassung viel mehr als ein Stundenzettel. Die Zeit geht nicht verloren, sondern wird gebucht und verrechnet. Ob Wartungseinsatz, Regie oder Projektbaustelle, alle Arbeitszeiten sind an der richtigen Stelle sofort zu finden im System.

Zeiterfassung ist ein mächtiges Instrument, um die Ressource Arbeitszeit optimal im Griff zu haben.

Zeiterfassung per Webanwendung

Die Zeiten aus der mobilen Zeiterfassung werden ebenfalls in die Büro-Zeiterfassung eingelesen.

Zeiten abrechnen

Die Abrechnung der Zeiten läuft dann fast automatisch: im Programm Regieauftrag die Funktion Bearbeiten / Zeiten einlesen aufrufen, dann werden die Arbeitszeiten aus der Zeiterfassung als Positionen in den Vorgang eingefügt. Die Rechnung ausdrucken und fertig.